泊頭市草莓视频深夜泵業有限公司

草莓视频污污污下载找草莓视频深夜泵業谘詢電話:13931762407
熱門點擊:
   
公司動態 news
  KCB草莓视频污污污下载結構特點
KCB草莓视频污污污下载有齒輪,軸,泵體,安全閥,軸端密封(特殊要求,可選用磁力驅動,零泄漏結構)等組成.齒輪經熱處理有較高的硬度和強度,與軸一同安裝在可更換的軸套內運轉.泵內全部零件的潤滑均在泵.....
油泵產品列表  
草莓视频污污污下载
草莓视频下载污污污
草莓视频污版在线观看
保溫瀝青泵
單螺杆泵
雙螺杆泵
三螺杆泵
自吸式離心泵
渣漿泵
高粘度泵
化工泵
船用泵
磁力泵
渣油泵係列
 
 
產品中心 當前位置 > 草莓视频深夜泵業 > 產品展示 > 草莓视频污污污下载 >
 
  • YCB圓弧草莓视频污污污下载
  • -詳細參數

YCB圓弧草莓视频污污污下载概述:
YCB圓弧草莓视频污污污下载是一種新結構外齧合圓弧草莓视频污污污下载,圓弧齒輪油泵中的齒輪采用圓弧加其它曲線複合而成的齒形,因而泵具有好的工作特性.該泵同傳統的漸開線齒輪油泵相比:具有壓力波動小、噪音低、效率高、壽命長等優點,是一種新型的係列節能泵.

YCB圓弧草莓视频污污污下载適用範圍:
 適用於輸送不含固體顆粒和纖維,無腐蝕性,溫度不高於80℃,粘度為5-1500cst的潤滑油或性質類似潤滑油的其它液體.

YCB圓弧草莓视频污污污下载用途:  
 在輸油係統中可用作傳輸,增壓泵.
 在輸油係統中可用作輸送,加壓,噴射的燃油泵.
 在一切工業領域中,均可作潤滑油泵用.

YCB圓弧草莓视频污污污下载結構特點:
  YCB圓弧草莓视频污污污下载齒輪采用具有國際八十年代水平的新技術——雙圓弧正弦曲線齒型.它與漸開線齒輪相比,突出的優點是齒輪齧合過程中齒廓麵沒有相對滑動,所以齒麵無磨損,運轉平衡,無困液現象,噪聲低,壽命長,效率高.該泵擺脫了傳統設計的束縛,使得草莓视频污污污下载在設計,生產和使用上進入了一個新的領域.
  設有差壓式安全閥作為超載保護,安全閥全回流壓力為泵額定排出壓力的1.5倍.也可在允許排出壓力範圍內根據實際需要另行調整.但是此安全閥不能作減壓閥長期工作,需要時可在管路上另行安裝.
  泵軸端密封設計為兩種形式,一種是機械密封,一種是填料密封,用戶可根據要求選擇.

正確安裝YCB圓弧草莓视频污污污下载的方法如下:
1.將機組放在埋有地腳螺栓的基礎上,在底座與基礎之間,用成對的楔墊用校正用。
2.鬆開聯軸大,用水平儀分別放在泵軸和底座上,通過調整楔墊,校正機組水平,適當擰緊地腳螺栓,以防走動。
3.校正泵軸和電機軸的同心度,在聯軸大路外圓上,允許偏差0.1毫米;兩聯軸器平麵的間隙應在2~4毫米,(小泵取小值)間隙要均勻,允差0.3毫米。
4.在接好管路及確定電動機轉動方向後,再接上聯軸器,並再校核一遍軸的同心芳。
5.在機組實際試運行2~3小時後,作檢查,如無不良現象,則認為安裝合格。
6.在安裝過程中,為防止雜物落入機器內,機組的所有孔眼均應蓋好。
7.為防止管線中雜物進入泵內,對新安裝的管線,在泵膠應裝設過濾器,其有效截麵應大於吸入管截麵的2~3倍。
安裝YCB圓弧草莓视频污污污下载的過程中應注意的事項:
1.YCB圓弧草莓视频污污污下载安裝的好壞,對泵的平穩運行和使用壽命有很重要的影響,所以安裝校正工作必須仔細地進行,不得草率行事。
2.YCB圓弧草莓视频污污污下载吸入管的安裝高度、長度和管徑應滿足計算值,力求簡短,減少不必要的損失(如彎頭等);並保障泵在工作時,不超過其允許汽蝕餘量。
3.YCB圓弧草莓视频污污污下载的吸入和排出管路應該有支架。泵不允許承受管路的負荷。
4.安裝YCB圓弧草莓视频污污污下载的地點應足夠寬敞,以方便檢修工作。

YCB圓弧草莓视频污污污下载性能參數表


型號

流量
Q
轉速
n
r/min
排出壓力
p
Mpa
必需汽
蝕餘量
r
m
效率
η
%
電動機
m3/h頻率
Hz
功率KW
型號
YCB0.6-0.60.69100.65.532500.75Y90S-6
1.01390500.75Y80L2-4
0.71130600.75Y90S-6
1.21710600.75Y80L2-4
YCB0.6-1.60.69101.67.070501.1Y90L-6
1.01400501.5Y90L-4
0.71130601.1Y90L-6
1.21710601.1Y90S-4
YCB1.6-0.61.69100.65.542500.75Y90S-6
2.51400501.1Y90S-4
1.91130601.1Y90L-6
3.01710601.5Y90L-4
YCB1.6-1.61.69401.67.071502.2Y112M-6
2.51440504Y112M-4
1.91150602.2Y112M-6
3.01750604Y112M-4
YCB3.3-0.63.39400.65.060501.5Y100L-6
5.01420502.2Y100L1-4
4.01150601.5Y100L-6
6.01730602.2Y100L1-4
YCB3.3-1.63.39601.67.072505.5Y132M2-6
5.01440507.5Y132M-4
4.01170604Y132M1-6
6.01750607.5Y132M-4
YCB4-0.64.09400.65.060501.5Y100L-6
6.01420502.2Y100L1-4
4.81150602.2Y112M-6
7.21730603Y100L2-4
YCB4-1.64.09601.67.072505.5Y132M2-6
6.01440507.5Y132M-4
4.81170605.5Y132M-6
7.21750607.5Y132M-4
YCB8-0.68.09600.65.061503Y132S-6
12.01440505.5Y132S-4
9.61170604Y132M1-6
14.41750605.5Y132S-4
YCB8-1.68.09701.67.0755011Y160L-6
12.014605015Y160L-4
9.611706011Y160L-6
14.417606015Y160L-4
YCB10-0.610.09600.65.062504Y132M1-6
15.01440505.5Y132S-4
12.01170605.5Y132M2-6
18.01750607.5Y132M-4
YCB10-1.610.09701.67.0765011Y160L-6
15.014705015Y160L-4
12.011706011Y160L-6
18.017706018.5Y160L-4
YCB20-0.620.09700.65.068507.5Y160M-6
24.01170607.5Y160M-6
YCB25-0.625.09700.65.5695011Y160L-6
30.011706011Y160L-6
YCB30-0.630.09700.65.5705011Y160L-6
36.011706011Y160L-6
YCB40-0.640.09700.65.5725015Y180L-6
48.011806015Y180L-6
YCB50-0.650.09700.65.5725022Y200L2-6
60.011806022Y200L2-6


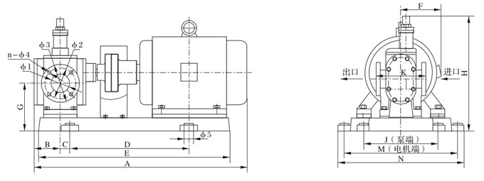
YCB不鏽鋼圓弧草莓视频污污污下载外型、安裝尺寸
YCB不鏽鋼圓弧草莓视频污污污下载外型、安裝尺寸
型號LL1L2L3L4BB1B2B3HH1H2DD1D2N-D34-D4d
YCB0.61803045107.5661259170351878092φ25φ100φ754-M104-φ9φ12
YCB1.62083255118.580150115905020879.795φ32φ120φ904-φ144-φ11φ14
YCB3.3247.63570132.85981801481207525887.6110φ40φ130φ1004-φ144-φ13φ18
YCB4260.63580134.81081801481207526392.6115φ50φ140φ1104-φ144-φ13φ18
YCB831345100158.513822017814090361105135φ65φ160

φ130

4-φ144-φ13φ24
YCB1033045100168.513822017814090360105135φ65φ160φ1304-φ144-φ13φ24
YCB2040055135201182260226180118436.5130.8170φ80φ190φ1504-φ184-φ18φ32
YCB2543055135216182260226180118436.5130.8170φ100φ210φ1704-φ184-φ18φ32
YCB3045960150236200275231190126461141185φ100φ210φ1704-φ184-φ18φ35
YCB4050070175251.5225300260210140509157205φ125φ240φ2004-φ184-φ18φ40
YCB5049370175246.5225300260210140509157205φ125φ240φ2004-φ184-φ18φ40

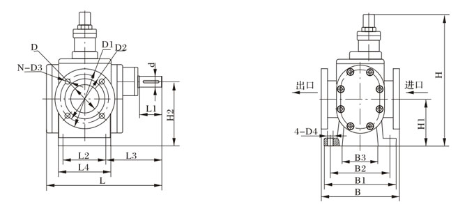
YCB不鏽鋼圓弧草莓视频污污污下载整機外型、安裝尺寸
YCB不鏽鋼圓弧草莓视频污污污下载整機外型、安裝尺寸
型號
Model
流量
m3/h
ABCDEFGHJKMNφ1φ2φ3n×φ4
YCB0.6-0.60.650650 22.5280421155115232 136 125222252 φ25 φ75 φ100 4×M10
YCB1.0-0.61.0486.5264405150217207237
YCB1.6-0.61.6 54763 27.5 303 455 155 243 156 150 222 252φ32φ90 φ120
4×φ14
YCB2.5-0.62.5
YCB3.3-0.63.3 6447635 344.5 544.5   180127.6298198180 266 298φ 40 φ100φ130
YCB5.0-0.65.0
YCB4.0-0.64.0 667.58240 346 557 256 288 φ50φ110 φ140
YCB6.0-0.66.0
YCB8.0-0.68.0 795101 50   382 644   210140396218220332364φ65φ130φ160
YCB12-0.612
YCB10-0.610849111430690
YCB15-0.615808392652
YCB20-0.6201009131.5 29.5566845  255 165.8 471.5 270 260380416φ80φ150φ1904×φ18
YCB25-0.6251100146.5603904385421 φ100 φ170 φ210
YCB30-0.630112514735646954196517295275400436
YCB40-0.640121416142.56731023285212562315300425461φ125φ200φ2408×φ18
YCB50-0.650130015952.56801080310237590240300476536φ125φ200φ2408×φ18
 相關新聞
 相關產品

泊頭市草莓视频深夜泵業製造有限公司  手機:13931762407 電話:0317-8285333 傳真:0317-8356252 聯係人:吳經理 
郵箱:chinayoubeng@163.com 地址:河北省泊頭市
網址:www.shhwujin.net Copyright 泊頭市草莓视频深夜泵業製造有限公司 all Rights Reserved .冀ICP備20908311號-1
網站地圖